Mesec: avgust 2024

  • V SEŽANI SKLADIŠČA ZA HUMANITARNE ORGANIZACIJE

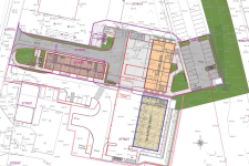
    Sežana postaja bogatejša za nov gasilski dom in skladišče za humanitarne organizacije, delo pa se bo začelo z izgradnjo skupnih komunalnih priključkov. Te bodo v občini začeli zgradili še letos.

    Občina  Sežana namerava objekt  zgraditi znotraj kompleksa izobraževalnega centra za zaščito in reševanje. Gasilski dom bo prostore dobil v pritličju in v prvem nadstropju, skladiščni objekt pa bo v pritličju. Gasilski dom bo sicer zajemal 746, skladiščni objekt pa 307 kvadratnih metrov površine.

    župan Občine Sežana Andrej Sila je povedal, da  izgradnja skupnih komunalnih priključkov predstavlja začetek del za celoten kompleks, po tem koraku pa sledi gradnja gasilskega doma, garažnega kompleksa, poskrbeli pa bodo tudi za ureditev parkirišča in okolice.

    Poleg tega bodo v Sežani do konca letošnjega leta vzpostavili tudi Vseslovenski center za velike požare v naravnem okolju. Ta bo ključen za zagotavljanje učinkovitega požarnega varstva in hitrega odziva na požare v naravnem okolju, s posebnim poudarkom na območju Krasa. Center bo namenjen vzdrževanju pripravljenosti in usposabljanju operativnih gasilcev za ukrepanje ob večjih požarih.

    Center bo sicer obsegal poslovni objekt z učilnicami in sejnimi sobami za pripadnike odzivnih enot ter udeležence usposabljanj in delovanja sistema zaščite in reševanja. Poleg tega bodo zgrajene še garaže, situacijski center, zagotovili pa bodo tudi sodobne učne pripomočke, simulatorje in drugo potrebno opremo.

    Celoten projekt je ocenjen na nekaj več kot tri milijone evrov, pri čemer bo Evropska unija prispevala skoraj 1,8 milijona evrov.   

    Skupno  izgradnjo  komunalnih priključkov za potrebe objektov URZSR (Uprave RS za zaščito in reševanje) in Občine Sežana so sicer dorekli z Aneksom k Sporazumu o ureditvi medsebojnih razmerij v zvezi z zamenjavo zemljišč in izgradnjo objektov na območju Izobraževalnega centra za zaščito in reševanje – enota Sežana  Dogovorjeno je bilo, da URSZR prevzame del financiranja komunalnih priključkov, katerih izgradnja je predvidena z gradbenim dovoljenjem Občine Sežana. Sklenjen dogovor prinaša koristi obema investitorjema. URSZR bo lahko pravočasno izpolnil obveze iz NOO, Občina Sežana pa bo pričela z gradnjo in si zagotovila veljavno gradbeno dovoljenje. Izbran izvajalec, podjetje Adriaing d.o.o., ki gradi objekt izobraževalnega centra za zaščito in reševanje, bo zgradil tudi komunalne priključke za navedene objekte.

     

    Prikaz: Občina Sežana 

  • MESTO KRASA V ZNAMENJU GRADOV IN PLEMSTVA

    Notranjski muzej Postojna se bo konec meseca posvetil predvsem družinam. Od 19. avgusta dalje bo tam potekal počitniški program. Ker bo s soorganizatorjem združeval športne aktivnosti in kulturo, je poletno varstvo za otroke poimenoval Kultur-Švic. počitniški teden bo 23. in 24. avgusta drugo leto zapored sklenil s festivalom za družine Mesto krasa.

    Ta bo letos v znamenju gradov in plemstva in bo nadgradil začasno razstavo Plemstvo na Postojnskem, ki je trenutno na ogled v muzeju. Poslušaj. 

     

    Otroci bodo v muzeju prespali. 

     

    Foto: arhiv Notranjskega muzeja 

    Avtor:Maruša Mele Pavlin
  • PRIHAJA PROMOTOR SLOVENSKE GLASBENE USTVARJALNOSTI 

     V okviru 23. Mednarodnega festivala mladih, ki ga prirejata Turistična zveza Brkini, Kras, Notranjska in Turistično društvo Postojna bo v četrtek, 15. avgusta, ob 20. uri v cerkvi svetega Štefana v Postojni nastopil Komorni zbor Konservatorija za glasbo in balet Ljubljana pod vodstvom dirigenta Ambroža Čopija.

    Zbor, ki dosega velike uspehe doma in v tujini, tudi v svetu velja za velikega promotorja slovenske kulture, zlasti sodobne glasbene ustvarjalnosti, saj posega po skladbah sodobnih slovenskih skladateljev.  Dirigent Ambrož Čopi je povedal, da bo zbor v Postojni predstavil novitete najmlajše skladateljske generacije. Poslušaj. 

     

    Foto: arhiv zbora 

     

    Avtor:Maruša Mele Pavlin
  • SLAVINA ZOPET VABI NA TRADICIONALNI KONCERT

    Kulturno društvo Slavina že več kot tri desetletja predstavlja steber kulturnega življenja v kraju. Društvo vsako leto povabi na Koncert pod lipo, ki je prerasel v enega večjih poletnih dogodkov v občini. Čeprav poletni dnevi predstavljajo kar nekaj organizacijskih ovir, ga v Slavini vsako leto uspešno pripravijo.
    Cerkev v Slavini je posvečena Marijinemu vnebovzetju, zato imajo na veliki šmaren župnijski shod, praznik pa sklenejo z večernim koncertom pred kulturnim domom, ki se bo ta četrtek pričel ob 20. uri. Nastopila bo Vokalna skupina “Slavna” s Pevskim zborom Šiške in Ansamblom Šahisti.

    Avtor:Jaka Zalar
  • VZDRŽEVALNA DELA TUDI POLETI

    Tudi v poletnih dneh se nadaljujejo vzdrževalna dela na železniškem omrežju, saj želijo večino končati pred šolskim oziroma študijskim letom. Na primorski progi že potekajo obsežna vzdrževalna dela v treh predorih med Pivko in Gornjimi Ležečami. Trajala bodo do 31. avgusta. Trenutno tako večina lokalnega potniškega prometa na tem odseku poteka v okviru nadomestnih prevozov. Vozijo samo vlaki v jutranjih konicah in kopalni vlaki do Kopra in Reke.

    Če med tednom sicer po tej progi vozi 32 potniških vlakov, je za 12 od teh organiziran nadomestni avtobusni prevoz, dva vlaka pa sta tudi združena, čemur so prilagojeni vozni red in tudi postanki, pojasnjujejo na Železnicah.

    V nadaljevanju imajo na primorski progi zaradi vzdrževalnih del v SŽ-Infrastruktura v načrtu še zaporo med Rakekom in Postojno, in sicer bo tam proga neprekinjeno zaprta med 7. in 18. septembrom.

    Septembra bosta dve 36-urni popolni zapori med nedeljo in ponedeljkom zvečer tudi na progi med Koprom in Divačo, in sicer zaradi priklopa drugega tira, gradnje cestne obvoznice na Kozini ter za potrebe rednega vzdrževanja.

     

    Foto: arhiv SŽ 

     

    Avtor:Maruša Mele Pavlin, STA